Woody
Woody propose une solution rapide et efficace pour la construction d'une maison ossature bois :
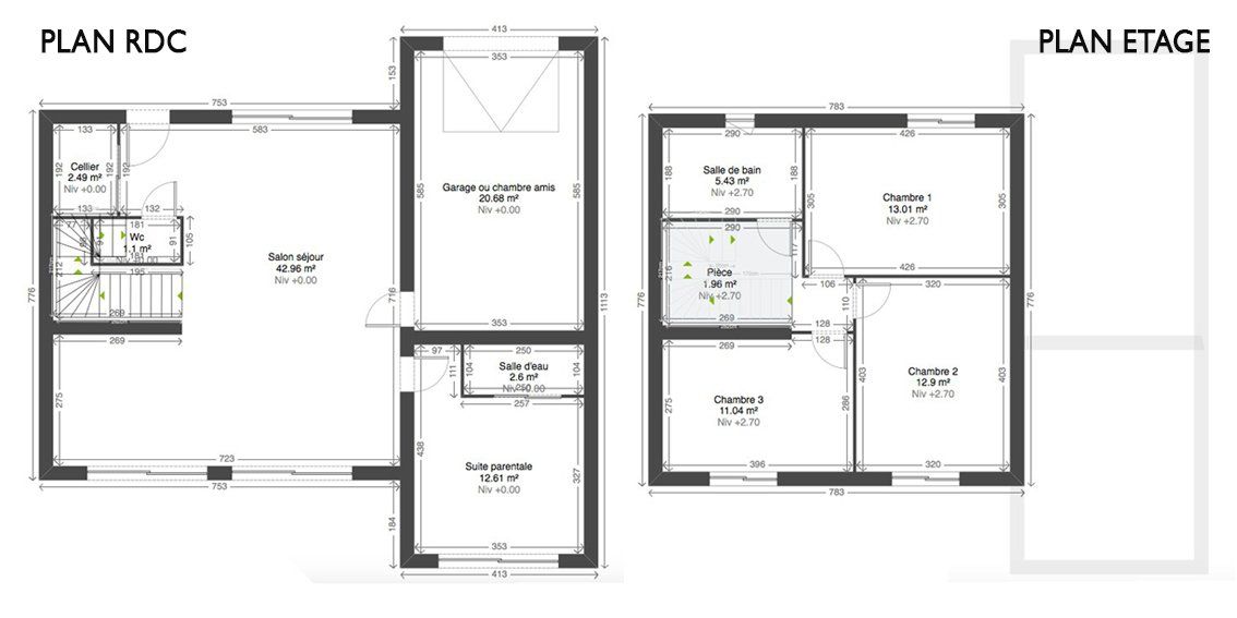
4 chambres - 2 salles de bains.






Présentation du pack Woody
Meolia , promoteur constructeur vous présente Woody sur un beau terrain sélectionné par notre service foncier situé proche des transports et commerces.
Le pack woody comprend la maison ossature bois béton + la piscine + la cuisine + le terrain !
La maison est livrée prête à décorer comprenant 3 à 4 chambres + 2 salles de bains + 2 wc.
Nos plans sont réalisés sur mesure en fonction de vos besoins et de vos envies .
Maison basse consommation , menuiserie aluminium, pompe à chaleur ou poêle à granulé ...
De nombreuses options supplémentaires sont disponibles : Sous sol, garage, comble aménageable , revêtements de sols , peinture , terrasses ....
Contactez votre conseiller pour plus de renseignements
Du bois simplement
Une maison ossature bois prête à décorer livrée en 4 mois , ça vous dit ?
Woody c'est une maison contemporaine de 4 chambres , 2 salles de bain , 2 wc en bardage bois.
L'ensemble des éléments de la maison sont fabriqués en usine afin de gagner en qualité et en rapidité !
Intéresser par woody et faire construire une maison ossature bois moderne ?
Afin de connaitre vos besoins et étudier votre demande contactez nous pour plus de renseignements sur woody et sur nos différents services




